A Wanas Classic 555V XF egy kompakt, felsőcsatlakozású hővisszanyerős szellőztető berendezés, amely családi házak, irodák, kereskedelmi épületek szellőztetésére lett tervezve. Magas hővisszanyerési hatásfokkal, automatikus áramláskiegyenlítő rendszerrel (XF) és EC ventilátoraival gondoskodik az energiatakarékos, csendes működésről. A készülék alapfelszereltségben tartalmaz előfűtőt, automatikus bypass-t, MODBUS RTU kommunikációs csatlakozást és egy színes érintőképernyős szabályzó egységet is az intelligens vezérléshez. A karbantartást szerszám nélkül nyitható előlap és elölről hozzáférhető szűrők könnyítik meg. A készülék optimális teljesítményt nyújt – esztétikus megjelenéssel, modern otthonokba tervezve.
Az XF rendszer folyamatosan optimalizálja a befúvott és elszívott levegő arányát.
Felső csatlakozású, amely egyszerű telepítést és helytakarékosságot biztosít.
Korszerű EC ventilátorok és szigetelt ház biztosítják az alacsony zajszintet.
Érintőképernyős kezelő, időzítés, MODBUS RTU támogatás és automatikus bypass.
Maximális légszállítás: 595 m³/h (ajánlott ≤ 320 m² alapterületre)
Hővisszanyerési hatásfok: kb. 81,5 % (közepes klímában)
Ventilátorok energiafogyasztása: 26–265 W, (két ventilátor)
Zajszint (1 m távolságban): 58 dB(A), csendes működésű
Előfűtő teljesítménye: 500 W, beépített fagyvédelmi rendszerrel
Automatikus légáramlás kiegyenlítő (XF rendszer) minden üzemmódban
Érintőképernyős vezérlő – heti programozással
Kommunikáció: MODBUS RTU, igény esetén Wi‑Fi modullal (W‑15, W‑19) távvezérléshez
Több üzemmód: „komfort”, „kandalló”, „bulizás”, „nyaralás” – alkalmazkodó működés
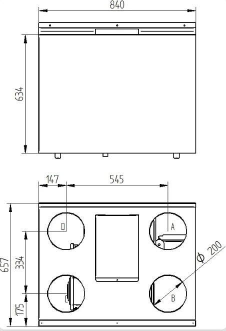
Csatlakozó átmérő: Ø 200 mm
Méretek: 840 × 657 × 634 mm (szélesség × mélység × magasság)
Tömeg: 72 kg
Szűrőosztályok: ISO Coarse 75 % + ePM10 50 %
Garancia: 3 év, karbantartáshoz kötött
A WANAS Classic 355V XF hővisszanyerős egységek modern és kompakt, felső csatlakozású szellőztetőberendezések, amelyek a fejlett kialakítást a magas funkcionalitással ötvözik. Családi házak, irodák, kereskedelmi épületek, és kiskereskedelmi üzletek számára terveztek. Nagyon alacsony energiafogyasztással, csendes működéssel, magas hatásfokkal és könnyű használattal rendelkezik. Masszív, nem gyúlékony konstrukciója és kereszt-ellenáramú hőcserélője tartósságot és magas hatásfokot biztosít. Ezek az egységek akár 320 m²-es helyiségek szellőztetésére is alkalmasak. Alapfelszereltségként érintőképernyős vezérlővel és előfűtővel rendelkezik. Ezenkívül az egység bővíthető internetes modullal, amely lehetővé teszi a vezérlést a világ bármely pontjáról.
A nagy hatékonyságú hőcserélővel felszerelt WANAS hővisszanyerő egységek megoldást jelentenek azok számára, akik hatékony és tartós hővisszanyerős szellőztetést keresnek. A kereszt-ellenáramú kialakítás lehetővé teszi a hőenergia optimális felhasználását, csökkentve a befújt levegő újramelegítésének szükségességét.
Az ár tartalmazza a modern, érintőképernyős fali vezérlőt. Az elegáns üvegből készült, 5,0 hüvelykes panel intuitív módon használható, és tökéletesen kiegészít bármilyen belső stílust, ötvözve a funkcionalitást az esztétikus dizájnnal. A panel rádiókommunikációval is fel van szerelve, így MaxiControl vagy RCO2 Control páratartalom-érzékelőt is csatlakoztathat hozzá. A vezérlőpanelről többek között a talajhőcserélőt (GHE), a párásítót, a hűtőt, a vízmelegítőt vagy a freonfűtőt vezérelheti.
A szellőztetőberendezés automatikus bypass-szal van felszerelve, amely a légáramlást szabályozza, lehetővé téve a helyiségek hatékony hűtését nyáron a hőcserélő megkerülésével. Ez lehetővé teszi a rendszer számára, hogy a hűvösebb külső levegőt közvetlenül az épületbe irányítsa, lehetővé téve a helyiségek természetes hűtését hűvös éjszakákon vagy kevésbé meleg napokon légkondicionálás nélkül. Az automatikus bypass karbantartásmentesen működik – a rendszer függetlenül értékeli az időjárási viszonyokat, és úgy állítja be az üzemmódját, hogy biztosítsa a felhasználói kényelmet és minimalizálja az energiafogyasztást. A bypass konfigurálható az érintőképernyős vezérlő segítségével, a felhasználók bármikor aktiválhatják vagy deaktiválhatják a funkciót, figyelemmel kísérhetik a befújt és elszívott levegő hőmérsékletét, és az egyéni preferenciák alapján beállíthatják a rendszer működési paramétereit.
A WANAS Classic 555 V XF hővisszanyerő egység intelligens, moduláló fűtővel van felszerelve, amely automatikusan a szellőztetőrendszer aktuális üzemi körülményeihez igazítja fűtési teljesítményét. Ez az automatikus szabályozás optimális hőcserélő védelmet biztosít. Az egységbe beépített fűtőberendezés mindössze 500 W-ot fogyaszt.
A MODBUS RTU egy megbízható, soros kommunikációs protokoll, amely lehetővé teszi az adatcserét a hővisszanyerő egység és a külső vezérlőrendszerek között. A Modbus RTU-n keresztül a szellőztető berendezés integrálható a különböző épületautomatikai, épületfelügyeleti, okos-otthon rendszerekhez.
A WANAS Classic 555V XF hővisszanyerő egység rendelkezik az XF rendszerrel, amely biztosítja a szellőzőrendszerben a légáramlás pontos kiegyensúlyozását. A rendszer figyeli és valós időben automatikusan beállítja a befúvó és elszívó ventilátorok működését, hogy biztosítsa a rendszeren belüli légáramlás egyensúlyát. Továbbá működése automatikus, így képes alkalmazkodni a rendszer ellenállásának változásaihoz, például a szennyezett szűrőkhöz vagy a rendszerbeállítások változásaihoz.
A WANAS Mobile Control W-15 és a WANAS Mobile Control W-19 Wi-Fi internetmodulok lehetővé teszik a WANAS gépek távoli vezérlését okostelefon, táblagép vagy számítógép segítségével. Ezek a modulok lehetővé teszik a szellőzőberendezés működésének valós idejű kezelését – az üzemmódok módosítását, a szellőzés intenzitásának beállítását és az üzemi ütemtervek beállítását.
A maxiControl érzékelő egy modern, vezeték nélküli eszköz a helyiség páratartalmának és hőmérsékletének mérésére. Lehetővé teszi az Umecto párásító automatikus vezérlését és a szellőztetőegység üzemmódjának a páratartalomtól függő beállítását. Az érzékelő fürdőszobába történő telepítése lehetővé teszi, hogy az egység automatikusan aktiválja a harmadik sebességfokozatot, ha a páratartalom túllépi a kívánt értéket, így gyorsabban elszállítja a párával feldúsult szennyezett levegőt. Az érintőképernyős fali vezérlővel való rádiókommunikációnak köszönhetően az érzékelő bármikor és bárhol telepíthető kábelek nélkül. Kompakt méretei és klasszikus kialakítása lehetővé teszi, hogy a maxiControl diszkréten illeszkedjen bármilyen belső térbe.
A WANAS Classic 555V XF hővisszanyerő egység entalpia hőcserélővel is rendelhető, amely a hővisszanyerés mellett a nedvességet is visszanyeri a kifújt levegőből. Ez lehetővé teszi a szellőztetőrendszer számára, hogy ne csak minimalizálja az energiaveszteséget, hanem megakadályozza a helyiség túlzott kiszáradását is, ami különösen fontos a fűtési szezonban. A hőcserélőben használt polimer membrán lehetővé teszi a nedvesség átvitelét a légáramok között, miközben megakadályozza a gázok, szagok és szennyező anyagok átvitelét. Az entalpia-cserélő választása ideális megoldás azok számára, akiknek nincs elegendő helyük egy párásító telepítésére.
Az érintőkijelzős fali vezérlésű hővisszanyerős egységek alapfelszereltségként zónaszellőztetés-vezérlő rendszerrel vannak felszerelve. A zónaszellőztetés a működés intenzitását az aktuális felhasználói igényekhez igazítja, biztosítva a kényelmet és az energiamegtakarítást. A rendszer lehetővé teszi az épület nappali és éjszakai zónákra osztását, biztosítva, hogy a szellőzés csak ott működjön, ahol szükséges. Az automatikus légáramlás-szabályozás (RCO2Control érzékelők segítségével), az alacsonyabb egységsebességen való működés lehetősége és az időbeosztás jelentősen csökkenti az energiafogyasztást és a hőveszteséget. További előnyök a csendes működés és a csökkentett levegőszárazság a fűtési szezonban.