Wanas Mini R32 freon hűtő-fűtő kalorifer

Wanas Mini R32 freon hűtő-fűtő kalorifer

A WANAS Mini R32 freon fűtő-hűtő egy olyan eszköz, amelyet a WANAS hővisszanyerő egységgel ellátott mechanikus szellőztető rendszerek fűtési és hűtési képességeinek bővítésére terveztek. Ez a bővítés lehetővé teszi a helyiségekbe juttatott levegő hűtését vagy fűtését, valamint a levegő páratartalmának csökkentését nyáron. A készüléket a befúvó légcsatornára, a hővisszanyerő egység után kell felszerelni, és bármely WANAS hővisszanyerő egység vezérli. A megfelelő működéshez külső légkondicionáló egységre van szükség – egy külső kondenzációs egységre és egy AHUKit vezérlőmodulra.

600 m3 /h

Légszállítás

Automatikus
vezérlés

Wanas berendezés által

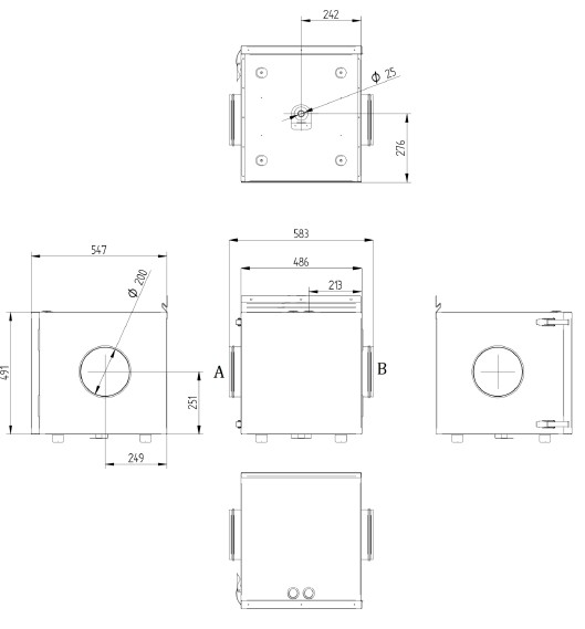
486 x 547 x 491

Méretek

Főbb jellemzők

Maximális komfort

Lehetővé teszi a szellőztetett levegő pontos hőmérséklet-szabályozását.

Kompakt kivitel

A berendezés a légáramláshoz képest bárhova felszerelhető.

Energiamegtakarítás

Legköltséghatékonyabb módja a szellőztető levegő hűtésének-fűtésének kültéri hűtőegységgel kombinálva.

Könnyű vezérlés

A készüléket egy vezérlővel lehet vezérelni, amely minden WANAS hővisszanyerős szellőztető berendezés alapfelszereltsége.

A Wanas hűtő-fűtő kaloriferek lehetővé teszik a szellőztetett levegő pontos hőmérséklet-szabályozását, így egész évben kellemes beltéri klímát biztosítanak. Hatékonyan támogatják a fűtési és hűtési igények kielégítését, kiegészítve a hővisszanyerős rendszerek energiatakarékos működését.

Műszaki adatok

Általános jellemzők

  • Ház: kompakt kialakítású, lemezből hang és hőszigetelt panelekből 
  • Hőcserélő: lemezes, nagy hatásfokkal
  • Oldalsó csatlakozású kialakítás

Teljesítmény

  • Maximális légszállítás: 600 m³/h (ajánlott ≤ 250 m² alapterületre)
  • Maximális fűtőteljesítmény: 3 k W
  • Maximális hűtőteljesítmény: 2,9 k W

Méretek

  • Csatlakozó átmérő: Ø 200 mm

  • Méretek: 486 × 547 × 491 mm (szélesség × mélység × magasság) 

  • Tömeg: 29,5 kg

Garancia

  • Garancia: 3 év, karbantartáshoz kötött

ÉRDEKEL A TERMÉK

Az űrlap elküldésével hozzájárulok az adataim kezeléséhez az Adatvédelmi Tájékoztató szerint.

Letölthető dokumentumok

KATALÓGUS

DWG

HIGIÉNIAI TANÚSÍTVÁNY