Wanas 1315 H XF

XF szabályozás. EC technológia. Maximális komfort.

A Wanas Classic 1315 H XF egy kompakt, oldalsó csatlakozású hővisszanyerős szellőztető berendezés, amely családi házak, irodák, kereskedelmi épületek szellőztetésére lett tervezve. Magas hővisszanyerési hatásfokkal, automatikus áramláskiegyenlítő rendszerrel (XF) és EC ventilátoraival gondoskodik az energiatakarékos, csendes működésről. A készülék alapfelszereltségben tartalmaz előfűtőt, automatikus bypass-t, MODBUS RTU kommunikációs csatlakozást és egy színes érintőképernyős szabályzó egységet is az intelligens vezérléshez. A karbantartást szerszám nélkül nyitható előlap és elölről hozzáférhető szűrők könnyítik meg. A készülék optimális teljesítményt nyújt – esztétikus megjelenéssel, modern otthonokba tervezve.

1380 m3 /h

Légszállítás

Automatikus
100%

Bypass

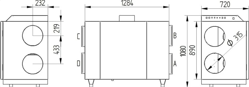
1284 x 720 x 1080

Méretek

Főbb jellemzők

Automatikus áramlás kiegyenlítés

Az XF rendszer folyamatosan optimalizálja a befúvott és elszívott levegő arányát.

Kompakt kivitel

Oldalsó csatlakozású, amely egyszerű telepítést és helytakarékosságot biztosít.

Csendes működés

Korszerű EC ventilátorok és szigetelt ház biztosítják az alacsony zajszintet.

Intelligens vezérlés

Érintőképernyős kezelő, időzítés, MODBUS RTU támogatás és automatikus bypass.

A Wanas hővisszanyerős szellőztető rendszerei folyamatos légcserét, szabályozott páratartalmat és energiatakarékos működést biztosítanak egész évben. A precíz légáramlás kiegyenlítés, magas hővisszanyerési hatásfok és intelligens vezérlés garantálja a stabil, tiszta és komfortos belső környezetet mind lakó-, mind kereskedelmi terekben.

Műszaki adatok

Általános jellemzők

  • Ház: kompakt kialakítású, lemezből hang és hőszigetelt panelekből 
  • Hőcserélő: kereszt-ellenáramú, nagy hatásfokkal
  • Oldalsó csatlakozású kialakítás – rendelhető balos vagy jobbos változatban

Teljesítmény

  • Maximális légszállítás: 1380 m³/h (ajánlott ≤ 620 m² alapterületre) 

  • Hővisszanyerési hatásfok akár 82 % 

  • Ventilátorok energiafogyasztása: 29–675 W, (két ventilátor) 

  • Hangteljesítményszint I. fokozat esetén: 35,2 dB(A), csendes működésű

  • Előfűtő teljesítménye: 3000 W, beépített fagyvédelmi rendszerrel 

Intelligens funkciók

  • Automatikus légáramlás kiegyenlítő (XF rendszer) minden üzemmódban 

  • Érintőképernyős vezérlő – heti programozással 

  • Kommunikáció: MODBUS RTU, igény esetén Wi‑Fi modullal (W‑15, W‑19) távvezérléshez 

  • Több üzemmód: „komfort”, „kandalló”, „bulizás”, „nyaralás” – alkalmazkodó működés 

Fizikai méretek

  • Csatlakozó átmérő: Ø 315 mm

  • Méretek: 1284 × 720 × 1080 mm (szélesség × mélység × magasság) 

  • Tömeg: 152 kg 

  • Szűrőosztályok: ISO Coarse 75 % + ePM10 50 %

Tartozékok

  • Érintőképernyő vezérlő (falra szerelhető)
  • Beépített Okos előfűtő (3000 W) 
  • Teljesen automatikus 100 % bypass – nyári üzemmódhoz 
  • XF automatikus légáramlás kiegyenlítő rendszer
  •  

Garancia

  • Garancia: 3 év, karbantartáshoz kötött

ÉRDEKEL A TERMÉK

Az űrlap elküldésével hozzájárulok az adataim kezeléséhez az Adatvédelmi Tájékoztató szerint.

Letölthető dokumentumok

A termékről

Fejlett vezérlési funkciók és felhasználóbarát kialakítás

A WANAS Classic 1315 H XF hővisszanyerős egységek modern és kompakt, oldalsó csatlakozású szellőztetőberendezések, amelyek a fejlett kialakítást a magas funkcionalitással ötvözik. Családi házak, irodák, kereskedelmi épületek, és kiskereskedelmi üzletek számára terveztek. Nagyon alacsony energiafogyasztással, csendes működéssel, magas hatásfokkal és könnyű használattal rendelkezik. Masszív, nem gyúlékony konstrukciója és kereszt-ellenáramú hőcserélője tartósságot és magas hatásfokot biztosít. Ezek az egységek akár 620 m²-es helyiségek szellőztetésére is alkalmasak. Alapfelszereltségként érintőképernyős vezérlővel és előfűtővel rendelkezik. Ezenkívül az egység bővíthető internetes modullal, amely lehetővé teszi a vezérlést a világ bármely pontjáról.

Nagy hatékonyságú hőcserélő

A nagy hatékonyságú hőcserélővel felszerelt WANAS hővisszanyerő egységek megoldást jelentenek azok számára, akik hatékony és tartós hővisszanyerős szellőztetést keresnek. A kereszt-ellenáramú kialakítás lehetővé teszi a hőenergia optimális felhasználását, csökkentve a befújt levegő újramelegítésének szükségességét.

Modern kezelőszervek

Az ár tartalmazza a modern, érintőképernyős fali vezérlőt. Az elegáns üvegből készült, 5,0 hüvelykes panel intuitív módon használható, és tökéletesen kiegészít bármilyen belső stílust, ötvözve a funkcionalitást az esztétikus dizájnnal. A panel rádiókommunikációval is fel van szerelve, így MaxiControl vagy RCO2 Control páratartalom-érzékelőt is csatlakoztathat hozzá. A vezérlőpanelről többek között a talajhőcserélőt (GHE), a párásítót, a hűtőt, a vízmelegítőt vagy a freonfűtőt vezérelheti.

Intelligens légáramlás-szabályozás

A szellőztetőberendezés automatikus bypass-szal van felszerelve, amely a légáramlást szabályozza, lehetővé téve a helyiségek hatékony hűtését nyáron a hőcserélő megkerülésével. Ez lehetővé teszi a rendszer számára, hogy a hűvösebb külső levegőt közvetlenül az épületbe irányítsa, lehetővé téve a helyiségek természetes hűtését hűvös éjszakákon vagy kevésbé meleg napokon légkondicionálás nélkül. Az automatikus bypass karbantartásmentesen működik – a rendszer függetlenül értékeli az időjárási viszonyokat, és úgy állítja be az üzemmódját, hogy biztosítsa a felhasználói kényelmet és minimalizálja az energiafogyasztást. A bypass konfigurálható az érintőképernyős vezérlő segítségével, a felhasználók bármikor aktiválhatják vagy deaktiválhatják a funkciót, figyelemmel kísérhetik a befújt és elszívott levegő hőmérsékletét, és az egyéni preferenciák alapján beállíthatják a rendszer működési paramétereit.

Okos előfűtés

A WANAS Classic 1315 H XF hővisszanyerő egység intelligens, moduláló fűtővel van felszerelve, amely automatikusan a szellőztetőrendszer aktuális üzemi körülményeihez igazítja fűtési teljesítményét. Ez az automatikus szabályozás optimális hőcserélő védelmet biztosít. Az egységbe beépített fűtőberendezés mindössze 3000 W-ot fogyaszt.

 

Modbus RTU

A MODBUS RTU egy megbízható, soros kommunikációs protokoll, amely lehetővé teszi az adatcserét a hővisszanyerő egység és a külső vezérlőrendszerek között. A Modbus RTU-n keresztül a szellőztető berendezés integrálható a különböző épületautomatikai, épületfelügyeleti, okos-otthon rendszerekhez.

 

XF automatikus áramláskiegyenlítő

A WANAS Classic 1315 H XF hővisszanyerő egység rendelkezik az XF rendszerrel, amely biztosítja a szellőzőrendszerben a légáramlás pontos kiegyensúlyozását. A rendszer figyeli és valós időben automatikusan beállítja a befúvó és elszívó ventilátorok működését, hogy biztosítsa a rendszeren belüli légáramlás egyensúlyát. Továbbá működése automatikus, így képes alkalmazkodni a rendszer ellenállásának változásaihoz, például a szennyezett szűrőkhöz vagy a rendszerbeállítások változásaihoz.

 

Az Ön otthona, az Ön szabályai – Okosotthon internetmodullal

A WANAS Mobile Control W-15 és a WANAS Mobile Control W-19 Wi-Fi internetmodulok lehetővé teszik a WANAS gépek távoli vezérlését okostelefon, táblagép vagy számítógép segítségével. Ezek a modulok lehetővé teszik a szellőzőberendezés működésének valós idejű kezelését – az üzemmódok módosítását, a szellőzés intenzitásának beállítását és az üzemi ütemtervek beállítását.

Vezeték nélküli páratartalom szabályozás

A maxiControl érzékelő egy modern, vezeték nélküli eszköz a helyiség páratartalmának és hőmérsékletének mérésére. Lehetővé teszi az Umecto párásító automatikus vezérlését és a szellőztetőegység üzemmódjának a páratartalomtól függő beállítását. Az érzékelő fürdőszobába történő telepítése lehetővé teszi, hogy az egység automatikusan aktiválja a harmadik sebességfokozatot, ha a páratartalom túllépi a kívánt értéket, így gyorsabban elszállítja a párával feldúsult szennyezett levegőt. Az érintőképernyős fali vezérlővel való rádiókommunikációnak köszönhetően az érzékelő bármikor és bárhol telepíthető kábelek nélkül. Kompakt méretei és klasszikus kialakítása lehetővé teszi, hogy a maxiControl diszkréten illeszkedjen bármilyen belső térbe.

Zónás szellőztetés – Kényelem ott, ahol szüksége van rá

Az érintőkijelzős fali vezérlésű hővisszanyerős egységek alapfelszereltségként zónaszellőztetés-vezérlő rendszerrel vannak felszerelve. A zónaszellőztetés a működés intenzitását az aktuális felhasználói igényekhez igazítja, biztosítva a kényelmet és az energiamegtakarítást. A rendszer lehetővé teszi az épület nappali és éjszakai zónákra osztását, biztosítva, hogy a szellőzés csak ott működjön, ahol szükséges. Az automatikus légáramlás-szabályozás (RCO2Control érzékelők segítségével), az alacsonyabb egységsebességen való működés lehetősége és az időbeosztás jelentősen csökkenti az energiafogyasztást és a hőveszteséget. További előnyök a csendes működés és a csökkentett levegőszárazság a fűtési szezonban.

szellőztető rendszer