Wanas Combo 430H XF

XF szabályozás. EC technológia. Maximális komfort.

A Wanas Combo 430H XF hővisszanyerős egység egy egyedülálló szellőztetőberendezés, amely négy fő funkciót ötvöz: szellőztetés, párásítás, fűtés és hűtés. A berendezés egy kompakt, oldalsó csatlakozású hővisszanyerős szellőztető berendezés, amely családi házak, irodák, kereskedelmi épületek szellőztetésére lett tervezve. Magas hővisszanyerési hatásfokkal, automatikus áramláskiegyenlítő rendszerrel (XF) és EC ventilátoraival gondoskodik az energiatakarékos, csendes működésről. A készülék alapfelszereltségben tartalmaz előfűtőt, automatikus bypass-t, MODBUS RTU kommunikációs csatlakozást és egy színes érintőképernyős szabályzó egységet is az intelligens vezérléshez. A karbantartást szerszám nélkül nyitható előlap és elölről hozzáférhető szűrők könnyítik meg. A készülék optimális teljesítményt nyújt – esztétikus megjelenéssel, modern otthonokba tervezve.

430 m3 /h

Légszállítás

Automatikus
100%

Bypass

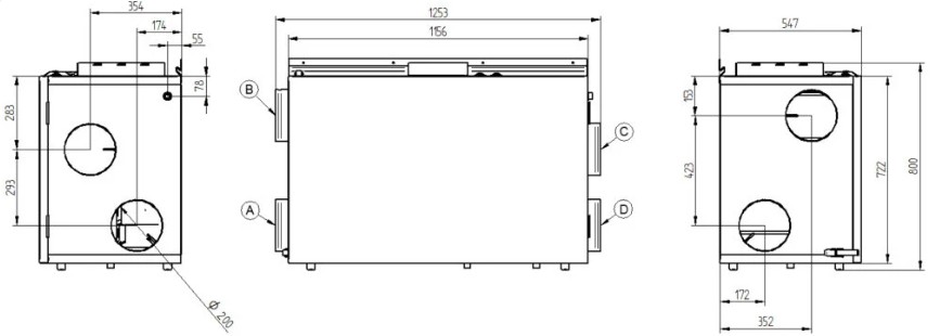
1253 x 547 x 800

Méretek

Főbb jellemzők

Automatikus áramlás kiegyenlítés

Az XF rendszer folyamatosan optimalizálja a befúvott és elszívott levegő arányát.

Kompakt kivitel

Oldalsó csatlakozású, amely egyszerű telepítést és helytakarékosságot biztosít.

Csendes működés

Korszerű EC ventilátorok és szigetelt ház biztosítják az alacsony zajszintet.

Intelligens vezérlés

Érintőképernyős kezelő, időzítés, MODBUS RTU támogatás és automatikus bypass.

A Wanas hővisszanyerős szellőztető rendszerei folyamatos légcserét, szabályozott páratartalmat és energiatakarékos működést biztosítanak egész évben. A precíz légáramlás kiegyenlítés, magas hővisszanyerési hatásfok és intelligens vezérlés garantálja a stabil, tiszta és komfortos belső környezetet mind lakó-, mind kereskedelmi terekben.

Műszaki adatok

Általános jellemzők

  • Ház: kompakt kialakítású, lemezből hang és hőszigetelt panelekből 
  • Hőcserélő: kereszt-ellenáramú, nagy hatásfokkal
  • Oldalsó csatlakozású kialakítás – rendelhető balos vagy jobbos változatban
  •  

Teljesítmény

  • Maximális légszállítás: 430 m³/h (ajánlott ≤ 250 m² alapterületre) 

  • Hővisszanyerési hatásfok: kb. 82,2 % (közepes klímában) 

  • Ventilátorok energiafogyasztása: 22–149 W, (két ventilátor) 

  • Zajszint (1 m távolságban): 46 dB(A), csendes működésű

  • Előfűtő teljesítménye: 1000 W, beépített fagyvédelmi rendszerrel 

Intelligens funkciók

  • Automatikus légáramlás kiegyenlítő (XF rendszer) minden üzemmódban 

  • Érintőképernyős vezérlő – heti programozással 

  • Kommunikáció: MODBUS RTU, igény esetén Wi‑Fi modullal (W‑15, W‑19) távvezérléshez 

  • Több üzemmód: „komfort”, „kandalló”, „bulizás”, „nyaralás” – alkalmazkodó működés 

Fizikai méretek

  • Csatlakozó átmérő: Ø 200 mm

  • Méretek: 1253 × 547 × 800 mm (szélesség × mélység × magasság) 

  • Tömeg: 89 kg 

  • Szűrőosztályok: ISO Coarse 75 % + ePM10 50 %

Tartozékok

  • Érintőképernyő vezérlő (falra szerelhető)
  • Beépített Okos előfűtő (1000 W) 
  • Teljesen automatikus 100 % bypass – nyári üzemmódhoz 
  • XF automatikus légáramlás kiegyenlítő rendszer
  •  

Garancia

  • Garancia: 3 év, karbantartáshoz kötött

ÉRDEKEL A TERMÉK

Az űrlap elküldésével hozzájárulok az adataim kezeléséhez az Adatvédelmi Tájékoztató szerint.

A termékről

oldalsócsonkos wanas

Fejlett vezérlési funkciók és felhasználóbarát kialakítás

A WANAS COMBO 430H XF hővisszanyerő egység innovatív technológiákat kínál, amelyek kényelmet és a szellőztetőrendszer teljes körű irányítását biztosítják. A maxiControl páratartalom-érzékelő automatikusan beállítja a helyiség páratartalmát, az érintőképernyős fali vezérlő pedig egyszerű kezelést tesz lehetővé. Ezenkívül a WANAS MOBILE CONTROL modul lehetővé teszi a rendszer bárhonnan történő kezelését mobilalkalmazás segítségével. Ez azt jelenti, hogy a szellőztetés, párásítás, hűtés és fűtés teljes körű irányítását a telefonjáról végezheti.

Nagy hatékonyságú hőcserélő

A nagy hatékonyságú hőcserélővel felszerelt WANAS hővisszanyerő egységek megoldást jelentenek azok számára, akik hatékony és tartós hővisszanyerős szellőztetést keresnek. A kereszt-ellenáramú kialakítás lehetővé teszi a hőenergia optimális felhasználását, csökkentve a befújt levegő újramelegítésének szükségességét.

Modern kezelőszervek

Az ár tartalmazza a modern, érintőképernyős fali vezérlőt. Az elegáns üvegből készült, 5,0 hüvelykes panel intuitív módon használható, és tökéletesen kiegészít bármilyen belső stílust, ötvözve a funkcionalitást az esztétikus dizájnnal. A panel rádiókommunikációval is fel van szerelve, így MaxiControl vagy RCO2 Control páratartalom-érzékelőt is csatlakoztathat hozzá. A vezérlőpanelről többek között a talajhőcserélőt (GHE), a párásítót, a hűtőt, a vízmelegítőt vagy a freonfűtőt vezérelheti.

Intelligens légáramlás-szabályozás

A szellőztetőberendezés automatikus bypass-szal van felszerelve, amely a légáramlást szabályozza, lehetővé téve a helyiségek hatékony hűtését nyáron a hőcserélő megkerülésével. Ez lehetővé teszi a rendszer számára, hogy a hűvösebb külső levegőt közvetlenül az épületbe irányítsa, lehetővé téve a helyiségek természetes hűtését hűvös éjszakákon vagy kevésbé meleg napokon légkondicionálás nélkül. Az automatikus bypass karbantartásmentesen működik – a rendszer függetlenül értékeli az időjárási viszonyokat, és úgy állítja be az üzemmódját, hogy biztosítsa a felhasználói kényelmet és minimalizálja az energiafogyasztást. A bypass konfigurálható az érintőképernyős vezérlő segítségével, a felhasználók bármikor aktiválhatják vagy deaktiválhatják a funkciót, figyelemmel kísérhetik a befújt és elszívott levegő hőmérsékletét, és az egyéni preferenciák alapján beállíthatják a rendszer működési paramétereit.

Okos előfűtés

A WANAS COMBO 430H XF hővisszanyerő egység intelligens, moduláló fűtővel van felszerelve, amely automatikusan a szellőztetőrendszer aktuális üzemi körülményeihez igazítja fűtési teljesítményét. Ez az automatikus szabályozás optimális hőcserélő védelmet biztosít. Az egységbe beépített fűtőberendezés mindössze 1000 W-ot fogyaszt.

 

Modbus RTU

A MODBUS RTU egy megbízható, soros kommunikációs protokoll, amely lehetővé teszi az adatcserét a hővisszanyerő egység és a külső vezérlőrendszerek között. A Modbus RTU-n keresztül a szellőztető berendezés integrálható a különböző épületautomatikai, épületfelügyeleti, okos-otthon rendszerekhez.

XF automatikus áramláskiegyenlítő

A WANAS COMBO 430H XF hővisszanyerő egység rendelkezik az XF rendszerrel, amely biztosítja a szellőzőrendszerben a légáramlás pontos kiegyensúlyozását. A rendszer figyeli és valós időben automatikusan beállítja a befúvó és elszívó ventilátorok működését, hogy biztosítsa a rendszeren belüli légáramlás egyensúlyát. Továbbá működése automatikus, így képes alkalmazkodni a rendszer ellenállásának változásaihoz, például a szennyezett szűrőkhöz vagy a rendszerbeállítások változásaihoz

Párologtató párásító

A WANAS Combo 430H XF hővisszanyerő egységben található  párologtató párásító egy innovatív megoldás, amely optimális beltéri páratartalmat biztosít, miközben javítja a levegő minőségét. A párologtató párásító a víz párolgás természetes folyamatát használja ki, amely a levegő párásításának legegészségesebb és leghatékonyabb módja. A víz egy speciális párologtató szőnyegen oszlik el, amelyen keresztül a levegő áramlik. A folyamat során a víz elpárolog, növelve a levegő páratartalmát a túltelített nedvesség kockázata nélkül.

Víz- és freonfűtők és -hűtők

A WANAS COMBO hővisszanyerő egység felszerelhető víz- vagy freonfűtővel/hűtővel, ami jelentősen megnöveli fűtési vagy hűtési képességét. A vízmelegítő/hűtők vizet használnak fűtőközegként, míg a freonos változatok hűtőközeg alapon működnek, gyors és hatékony fűtést vagy hűtést biztosítva. Ezen eszközök integrálása magas energiahatékonyságot biztosít és javítja a beltéri hőkomfortot, a rendszert a változó kültéri körülményekhez igazítva és egész évben energiamegtakarítást biztosítva.

Az Ön otthona, az Ön szabályai – Okosotthon internetmodullal

A WANAS Mobile Control W-15 és a WANAS Mobile Control W-19 Wi-Fi internetmodulok lehetővé teszik a WANAS gépek távoli vezérlését okostelefon, táblagép vagy számítógép segítségével. Ezek a modulok lehetővé teszik a szellőzőberendezés működésének valós idejű kezelését – az üzemmódok módosítását, a szellőzés intenzitásának beállítását és az üzemi ütemtervek beállítását.

szellőztető rendszer

Zónás szellőztetés – Kényelem ott, ahol szüksége van rá

Az érintőkijelzős fali vezérlésű hővisszanyerős egységek alapfelszereltségként zónaszellőztetés-vezérlő rendszerrel vannak felszerelve. A zónaszellőztetés a működés intenzitását az aktuális felhasználói igényekhez igazítja, biztosítva a kényelmet és az energiamegtakarítást. A rendszer lehetővé teszi az épület nappali és éjszakai zónákra osztását, biztosítva, hogy a szellőzés csak ott működjön, ahol szükséges. Az automatikus légáramlás-szabályozás (RCO2Control érzékelők segítségével), az alacsonyabb egységsebességen való működés lehetősége és az időbeosztás jelentősen csökkenti az energiafogyasztást és a hőveszteséget. További előnyök a csendes működés és a csökkentett levegőszárazság a fűtési szezonban.

Kiegészítő hűtés fűtés DX-es

A WANAS COMBO hővisszanyerő egység felszerelhető egy olyan egységgel, amely jelentősen kibővíti funkcionalitását azáltal, hogy lehetővé teszi a beltéri hőmérséklet hatékony kezelését. Az egység kiegészítő fűtési vagy hűtési forrásként működik, biztosítva az optimális hőmérséklet-szabályozást, különösen szélsőséges időjárási körülmények között. A szellőztetőrendszerrel való integráció lehetővé teszi a gyors alkalmazkodást a változó körülményekhez, biztosítva a kényelmet és az energiamegtakarítást egész évben.

Kiegészítő hűtés fűtés vizes

A WANAS COMBO rendszerhez hozzáadott puffer segítségével az energia hatékonyabban felhasználható. A puffer tárolja a hőt vagy a hideget, lehetővé téve a rendszer számára, hogy alkalmazkodjon a változó energiaigényekhez. Ez a puffer stabilizálja a helyiség hőmérsékletét, kiküszöböli a nem kívánt hőmérsékleti ingadozásokat és optimalizálja az energiafogyasztást, ami alacsonyabb üzemeltetési költségeket és jobb felhasználói kényelmet eredményez.