Wanas Airclass 600

EC technológia. Maximális komfort.

A WANAS Airclass 600 központi szellőztetőberendezés egy kompakt szellőztetőberendezés iskolák, irodák és óvodák számára. Akár 12 méteres működési tartománya lehetővé teszi akár nagy tantermek szellőztetését is szellőzőcsatornák nélkül. Jellemzője a nagyon alacsony energiafogyasztás, a csendes működés, a magas hőhatásfok és a könnyű használat. A WANAS mérnökei által tervezett és a legapróbb részletekre odafigyelve gyártott egység számos kiváló funkcióval van felszerelve a magas felhasználói kényelem biztosítása érdekében. Alapfelszereltségként egy érintőképernyős vezérlővel rendelkezik. Ezenkívül az egység felszerelhető egy SMART modullal is, amely lehetővé teszi az adott létesítményben telepített összes egység vezérlését. Például az összes központi egység bármikor kikapcsolható.

545 m3 /h

Légszállítás

Automatikus
100%

Bypass

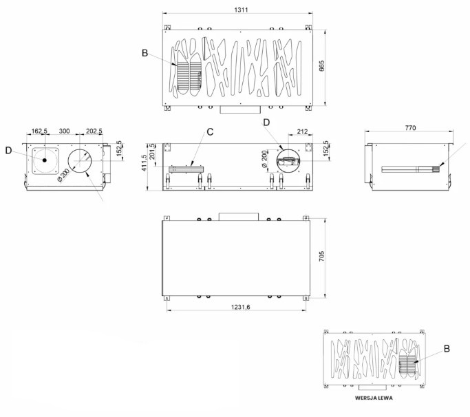
1311 x 770 x 411

Méretek

Főbb jellemzők

Entalpia hőcserélő

A hővisszanyerés mellett a nedvességet is visszanyeri a kifújt levegőből.

Kompakt kivitel

Mennyezetre függeszthető nincs szükség befúvó és elszívó légtechnikai csőhálózat kiépítésére.

Csendes működés

Korszerű EC ventilátorok és szigetelt ház biztosítják az alacsony zajszintet.

Intelligens vezérlés

Érintőképernyős kezelő, időzítés, MODBUS RTU támogatás és automatikus bypass.

A Wanas hővisszanyerős szellőztető rendszerei folyamatos légcserét, szabályozott páratartalmat és energiatakarékos működést biztosítanak egész évben. A precíz légáramlás kiegyenlítés, magas hővisszanyerési hatásfok és intelligens vezérlés garantálja a stabil, tiszta és komfortos belső környezetet mind lakó-, mind kereskedelmi terekben.

Műszaki adatok

Általános jellemzők

  • Ház:  kompakt kialakítású, lemezből hang és hőszigetelt panelekből
  • Hőcserélő: entalpia kereszt-ellenáramú hőcserélő
  • Mennyezetre függeszthető nincs szükség befújó és elszívó légtechnikai csőhálózat kiépítésére
  •  

Teljesítmény

  • Maximális légszállítás: 545 m³/h (ajánlott ≤ 218 m² alapterületre) 

  • Hővisszanyerési hatásfok: kb. 75,7 % (közepes klímában) 

  • Ventilátorok energiafogyasztása: 27–182 W, (két ventilátor) 

  • Zajszint (1 m távolságban): 56 dB(A), csendes működésű

  • Előfűtő teljesítménye: 500 W, beépített fagyvédelmi rendszerrel 

Intelligens funkciók

  • Érintőképernyős vezérlő – heti programozással 
  • Kommunikáció: MODBUS RTU, igény esetén Wi‑Fi modullal (W‑15, W‑19) távvezérléshez 

  • Több üzemmód: „komfort”, „kandalló”, „bulizás”, „nyaralás” – alkalmazkodó működés 

Fizikai méretek

  • Csatlakozó átmérő: Ø 200 mm

  • Méretek: 1311 × 770 × 411 mm (szélesség × mélység × magasság) 

  • Tömeg: 71 kg 

  • Szűrőosztályok: ISO Coarse 75 % + ePM10 50 %

Tartozékok

  • Érintőképernyő vezérlő (falra szerelhető)
  • Beépített Okos előfűtő (500 W) 
  • Teljesen automatikus 100 % bypass – nyári üzemmódhoz 

Garancia

  • Garancia: 3 év, karbantartáshoz kötött

ÉRDEKEL A TERMÉK

Az űrlap elküldésével hozzájárulok az adataim kezeléséhez az Adatvédelmi Tájékoztató szerint.

Letölthető dokumentumok

KATALÓGUS

HIGIÉNIAI TANÚSÍTVÁNY

A termékről

Fejlett vezérlési funkciók és felhasználóbarát kialakítás

A WANAS AIRCLASS 600 központi szellőztetőberendezés egy kompakt szellőztetőberendezés iskolák, irodák és óvodák számára. Akár 12 méteres működési tartománya lehetővé teszi akár nagy tantermek szellőztetését is szellőzőcsatornák nélkül. Jellemzője a nagyon alacsony energiafogyasztás, a csendes működés, a magas hőhatásfok és a könnyű használat. A WANAS mérnökei által tervezett és a legapróbb részletekre odafigyelve gyártott egység számos kiváló funkcióval van felszerelve a magas felhasználói kényelem biztosítása érdekében. Alapfelszereltségként egy érintőképernyős vezérlővel rendelkezik. A rendszer CO₂ és páratartalom-érzékelőkkel működik együtt, hogy automatikusan a beltéri körülményekhez igazítsa az üzemi paramétereket, biztosítva az állandó komfortérzetet és levegőminőséget. Ezenkívül az egység felszerelhető egy SMART modullal is, amely lehetővé teszi az adott létesítményben telepített összes egység vezérlését. Például az összes központi egység bármikor kikapcsolható.

Entalpia hőcserélő

A WANAS Airclass 600 hővisszanyerő egység entalpia hőcserélővel van felszerelve, amely a hővisszanyerés mellett a nedvességet is visszanyeri a kifújt levegőből. Ez lehetővé teszi a szellőztetőrendszer számára, hogy ne csak minimalizálja az energiaveszteséget, hanem megakadályozza a helyiség túlzott kiszáradását is, ami különösen fontos a fűtési szezonban. A hőcserélőben használt polimer membrán lehetővé teszi a nedvesség átvitelét a légáramok között, miközben megakadályozza a gázok, szagok és szennyező anyagok átvitelét.

Modern kezelőszervek

Az ár tartalmazza a modern, érintőképernyős fali vezérlőt. Az elegáns üvegből készült, 5,0 hüvelykes panel intuitív módon használható, és tökéletesen kiegészít bármilyen belső stílust, ötvözve a funkcionalitást az esztétikus dizájnnal. A panel rádiókommunikációval is fel van szerelve, így MaxiControl vagy RCO2 Control páratartalom-érzékelőt is csatlakoztathat hozzá. A vezérlőpanelről többek között a talajhőcserélőt (GHE), a párásítót, a hűtőt, a vízmelegítőt vagy a freonfűtőt vezérelheti.

Intelligens légáramlás-szabályozás

A szellőztetőberendezés automatikus bypass-szal van felszerelve, amely a légáramlást szabályozza, lehetővé téve a helyiségek hatékony hűtését nyáron a hőcserélő megkerülésével. Ez lehetővé teszi a rendszer számára, hogy a hűvösebb külső levegőt közvetlenül az épületbe irányítsa, lehetővé téve a helyiségek természetes hűtését hűvös éjszakákon vagy kevésbé meleg napokon légkondicionálás nélkül. Az automatikus bypass karbantartásmentesen működik – a rendszer függetlenül értékeli az időjárási viszonyokat, és úgy állítja be az üzemmódját, hogy biztosítsa a felhasználói kényelmet és minimalizálja az energiafogyasztást. A bypass konfigurálható az érintőképernyős vezérlő segítségével, a felhasználók bármikor aktiválhatják vagy deaktiválhatják a funkciót, figyelemmel kísérhetik a befújt és elszívott levegő hőmérsékletét, és az egyéni preferenciák alapján beállíthatják a rendszer működési paramétereit.

Okos előfűtés

A WANAS Classic 600 hővisszanyerő egység intelligens, moduláló fűtővel van felszerelve, amely automatikusan a szellőztetőrendszer aktuális üzemi körülményeihez igazítja fűtési teljesítményét. Ez az automatikus szabályozás optimális hőcserélő védelmet biztosít. Az egységbe beépített fűtőberendezés mindössze 500 W-ot fogyaszt.

 

Modbus RTU

A MODBUS RTU egy megbízható, soros kommunikációs protokoll, amely lehetővé teszi az adatcserét a hővisszanyerő egység és a külső vezérlőrendszerek között. A Modbus RTU-n keresztül a szellőztető berendezés integrálható a különböző épületautomatikai, épületfelügyeleti, okos-otthon rendszerekhez.

Az Ön otthona, az Ön szabályai – Okosotthon internetmodullal

A WANAS Mobile Control W-15 és a WANAS Mobile Control W-19 Wi-Fi internetmodulok lehetővé teszik a WANAS gépek távoli vezérlését okostelefon, táblagép vagy számítógép segítségével. Ezek a modulok lehetővé teszik a szellőzőberendezés működésének valós idejű kezelését – az üzemmódok módosítását, a szellőzés intenzitásának beállítását és az üzemi ütemtervek beállítását.

 

Modern kezelőszervek

 

Az ár tartalmazza a modern, érintőképernyős fali vezérlőt. Az elegáns üvegből készült, 5,0 hüvelykes panel intuitív módon használható, és tökéletesen kiegészít bármilyen belső stílust, ötvözve a funkcionalitást az esztétikus dizájnnal.

Korszerű hővisszanyerős szellőztető

Az Ön otthona, az Ön szabályai – Okosotthon internetmodullal

A WANAS Mobile Control W-15 és a WANAS Mobile Control W-19 Wi-Fi internetmodulok lehetővé teszik a WANAS gépek távoli vezérlését okostelefon, táblagép vagy számítógép segítségével. Ezek a modulok lehetővé teszik a szellőzőberendezés működésének valós idejű kezelését – az üzemmódok módosítását, a szellőzés intenzitásának beállítását és az üzemi ütemtervek beállítását.